- Woonoppervlakte
- Circa 112 m²
- Perceeloppervlakte
- Circa 195 m²
- Bouwjaar
- Gebouwd in 2006
- Aantal kamers
- 3 kamers (2 slaapkamers)
Welkom bij Sigmundplantsoen 64, een ruime en lichte HOEKWONING gelegen in een rustige en kleinschalige woonwijk. Met een woonoppervlakte van 112 M² en een perceel van 195 M², biedt deze woning volop ruimte en comfort.
INDELING
Bij binnenkomst betreed je de entree en hal, waar zich het toilet, de meterkast en de trapopgang naar de eerste verdieping bevinden. Vanuit de hal kom je in de ruime en lichte woonkamer, die direct grenst aan de keuken. De open indeling zorgt voor een prettige woonbeleving, ideaal voor zowel ontspanning als gezellig samenzijn.
Op de begane grond bevindt zich daarnaast een praktische slaapkamer en een nette badkamer, wat de woning ook geschikt maakt voor levensloopbestendig wonen.
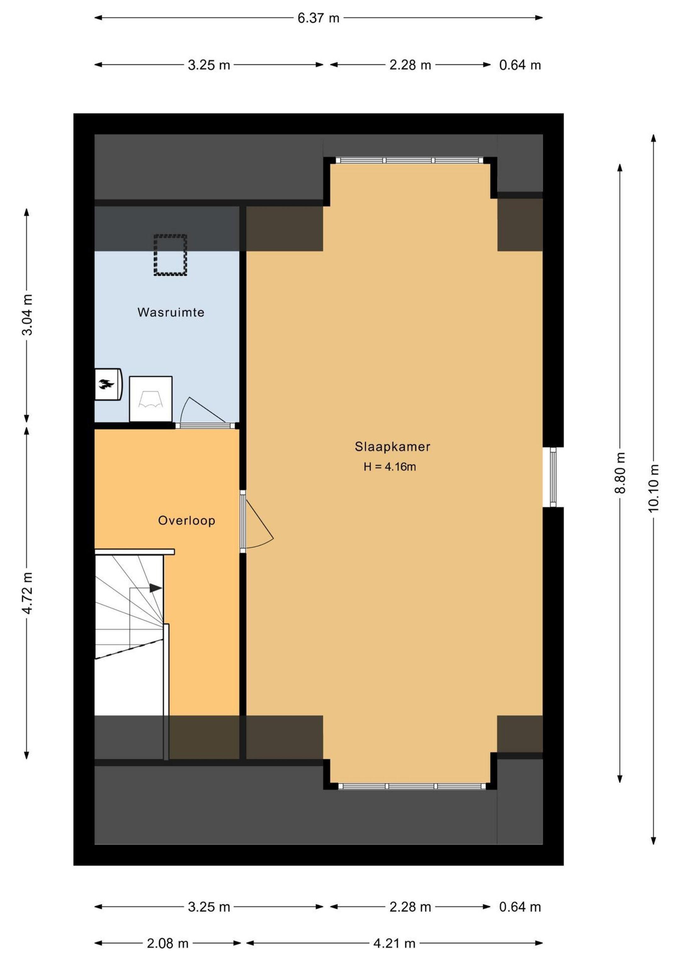
Op de eerste verdieping tref je een royale slaapkamer met veel natuurlijk lichtinval. Deze ruimte biedt de mogelijkheid om eenvoudig opgedeeld te worden in twee kamers, ideaal voor een gezin of als thuiskantoor.
Energiezuinig & Tuin op het zuidoosten
Deze woning heeft een energielabel A, wat zorgt voor een energiezuinige en comfortabele leefomgeving. De achtertuin, gelegen op het zuidoosten, is een fijne plek om te ontspannen en biedt volop mogelijkheden voor een terras of groene inrichting.
PERFECTE LOCATIE
Binnen drie minuten loopafstand vind je een supermarkt en een klein winkelcentrum voor al je dagelijkse benodigdheden. De wijk biedt een prettige en rustige woonomgeving met goede voorzieningen in de buurt.
MEER INFORMATIE?
Wil je nog meer weten over deze woning? Download de brochure of bekijk de details op SIGMUNDPLANTSOEN64.NL.
Mis deze kans niet en plan een bezichtiging. We verwelkomen je graag voor een vrijblijvende rondleiding!
Overdracht
- Vraagprijs
- € 450.000 k.k.
- Status
- Verkocht
Bouw
- Object type
- Eengezinswoning, eindwoning
- Soort bouw
- Bestaande bouw
- Bouwjaar
- 2006
Oppervlakte en inhoud
- Woonoppervlakte
- 112 m²
- Perceeloppervlakte
- 195 m²
- Inhoud
- 421 m³
- Gebouwgeb. buitenruimte
- 7 m²
Indeling
- Aantal kamers
- 3 kamers (2 slaapkamers)
- Aantal badkamers
- 1 badkamer en 1 apart toilet
- Aantal woonlagen
- 2 woonlagen
Energie
- Energielabel
- A
- Energielabel registratie
- 31-07-2019
- Verwarming
- Cv-ketel
- Cv ketel
- Intergas (gas gestookt, eigendom)
Buitenruimte
- Ligging
- Aan rustige weg en in woonwijk
- Tuin
- Achtertuin en voortuin
- Afmetingen achtertuin
- 102 m² (12,77 meter diep en 8,00 meter breed)
- ligging tuin
- Gelegen op het zuidoosten bereikbaar via achterom
Bergruimte
- Schuur / berging
- Vrijstaande houten berging
Parkeergelegenheid
- Soort parkeergelegenheid
- Openbaar parkeren
Energieverbruik in Almere
Energielabel deze woning
Energielabel A
Publicatie energielabel: 31-07-2019
Stroomverbruik per jaar
(Gemiddelde hoekwoning in Almere)
Gasverbruik per jaar
(Gemiddelde hoekwoning in Almere)
* Cijfers zijn afkomstig van het CBS en bedoeld als indicatie en kunnen verschillen voor deze woning
Indicatie hypotheeklasten
Eigen inleg:
Spaargeld / overwaarde
Rente:
Laagste 10-jaars rente
Laagste 10-jaars rente
2,75% - Centraal Beheer Groen... - NHG
3,04% - Argenta Groen Hypothee... - 80%
Laagste 20-jaars rente
3,18% - Argenta Groen Hypothee... - NHG
3,39% - Argenta Groen Hypothee... - 80%
Laagste 30-jaars rente
3,35% - Argenta Groen Hypothee... - NHG
3,56% - Argenta Groen Hypothee... - 80%
Hypotheek:
Bruto maandlasten: € 0 p/m
Netto maandlasten: € 0 p/m
Hoe berekenen we dit?
Het rentepercentage is gebaseerd op de laagste 10 jaars vaste rente voor één hypotheekdeel. De vermelde rente (3.04% zonder NHG) is gecontroleerd op 28-10-2025. Deze berekening is gebaseerd op een annuïteitenhypotheek die volledig wordt afgelost, waarbij de maandlasten gedurende de gehele looptijd gelijk blijven. De werkelijke rente en netto maandlasten kunnen variëren, afhankelijk van uw persoonlijke situatie en de hypotheekverstrekker. Raadpleeg een financieel adviseur voor een nauwkeurige berekening en advies. Aan deze berekening kunnen geen rechten worden ontleend; het dient enkel als indicatie.
Documentatie
Kadastrale kaart
Leefomgeving
Brochure
WOZ waarderapport
Plattegronden PDF
BAG uittreksel
Bezoek onze website
Bezichtiging
Bod uitbrengen
Waardebepaling
Zoekopdracht
Alles downloaden
Zonnegrenzen bekijken
Op de kaart
Inwoners in Almere
Cijfers voor postcodegebied 1336
- Totaal aantal inwoners
- 8655 inwoners
- Mannen
- 51%
- Vrouwen
- 49%
Inwoners in Almere
Cijfers voor postcodegebied 1336
- tot 15 jaar
- 24%
- 15 tot 25 jaar
- 11%
- 25 tot 35 jaar
- 33%
- 45 tot 65 jaar
- 24%
- 65 en ouder
- 8%
Huishoudens in Almere
Cijfers voor postcodegebied 1336
- Eenpersoons zonder kinderen
- 28%
- Meerpersoons zonder kinderen
- 22%
- Huishoudens zonder kinderen
- 50%
Huishoudens in Almere
Cijfers voor postcodegebied 1336
- Huishoudens met één kind
- 10%
- Huishoudens met meerdere kinderen
- 40%
- Huishoudens met kinderen
- 50%
Woningen in Almere
Cijfers voor postcodegebied 1336
- Woningen voor 1945
- 1%
- Woningen tussen 1945 en 1965
- 1%
- Woningen tussen 1965 en 1975
- 1%
- Woningen tussen 1975 en 1985
- 1%
- Woningen tussen 1985 en 1995
- 1%
Woningen in Almere
Cijfers voor postcodegebied 1336
- Woningen tussen 1995 en 2005
- 9%
- Woningen tussen 2005 en 2015
- 84%
- Woningen na 2015
- 7%
- Huurwoningen
- 20%
- Koopwoningen
- 80%
Overige in Almere
Cijfers voor postcodegebied 1336
- Gemiddelde WOZ waarde
- € 283.000,-
- Personen onder de 65 met uitkering
- 7%
Overige in Almere
Cijfers voor postcodegebied 1336
- Adressen per km²
- 1155
- Stedelijkheid (schaal 1 op 5)
- 60%
Korte feiten over Almere
Almere is een stad en gemeente in de Nederlandse provincie Flevoland, in de polder Zuidelijk Flevoland. De gemeente telt 223.183 inwoners en heeft een totale oppervlakte van 248,77 km², waarvan 129,19 km² land en 119,58 km² water (31 januari 2023, Bron: CBS).
Indien u vragen heeft of u wilt een bezichtiging inplannen, dan kunt u gebruik maken van het formulier hiernaast. Er zal daarna op korte termijn contact met u worden opgenomen.
Wilhelminaweg 38
3441 XC, Woerden
+31(0)30 630 82 45 info@dbmakelaardij.nl dutchbrokersmakelaardij.nlContact opnemen
Dutch Brokers Makelaardij
Uw vertrouwde partner in de woningmarkt. Dutch Brokers en Expat4Expat biedt een uitgebreide dienstverlening met ruim 15 jaar ervaring in het kopen, financieren en verkopen van woningen. Onze uitzonderlijke reputatie binnen de expatmarkt hebben we te danken aan de intensieve begeleiding die we onze klanten al meer dan 15 jaar bieden.
Onze diensten
Aankoopbegeleiding
Wij begeleiden u bij het vinden van uw droomhuis, onderhandelen voor de beste voorwaarden en zorgen voor een soepele afronding van de aankoop.
Verkoopbegeleiding
Ons team ondersteunt u bij de strategische verkoop van uw woning, van het vaststellen van de optimale prijs tot aan het sluiten van de deal en de definitieve overdracht.
Financiering
Onze financiële experts helpen u bij het vinden van de meest passende financieringsopties, volledig afgestemd op uw persoonlijke situatie.
Nazorg
Ook na de transactie staan wij voor u klaar met advies en ondersteuning, zodat u met een gerust hart kunt genieten van uw nieuwe woning of verkoop.